Si buscas una vivienda cerca del mar, con espacio exterior y en una zona tranquila, esta casa en Ribeira es una oportunidad ideal tanto como residencia habitual como segunda vivienda.
Construida en 2010, la propiedad se distribuye en tres plantas más bajo cubierta y destaca por su fachada de piedra, su buena orientación y sus agradables vistas al mar.
En la planta baja encontramos una cocina independiente, un amplio salón-comedor con vistas al mar, un dormitorio, un cuarto de baño y trastero. Desde esta planta se accede a dos zonas exteriores: un patio lavadero en la parte posterior y una terraza delantera amplia, perfecta para disfrutar del aire libre.
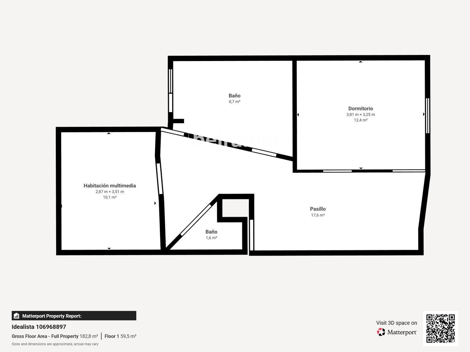
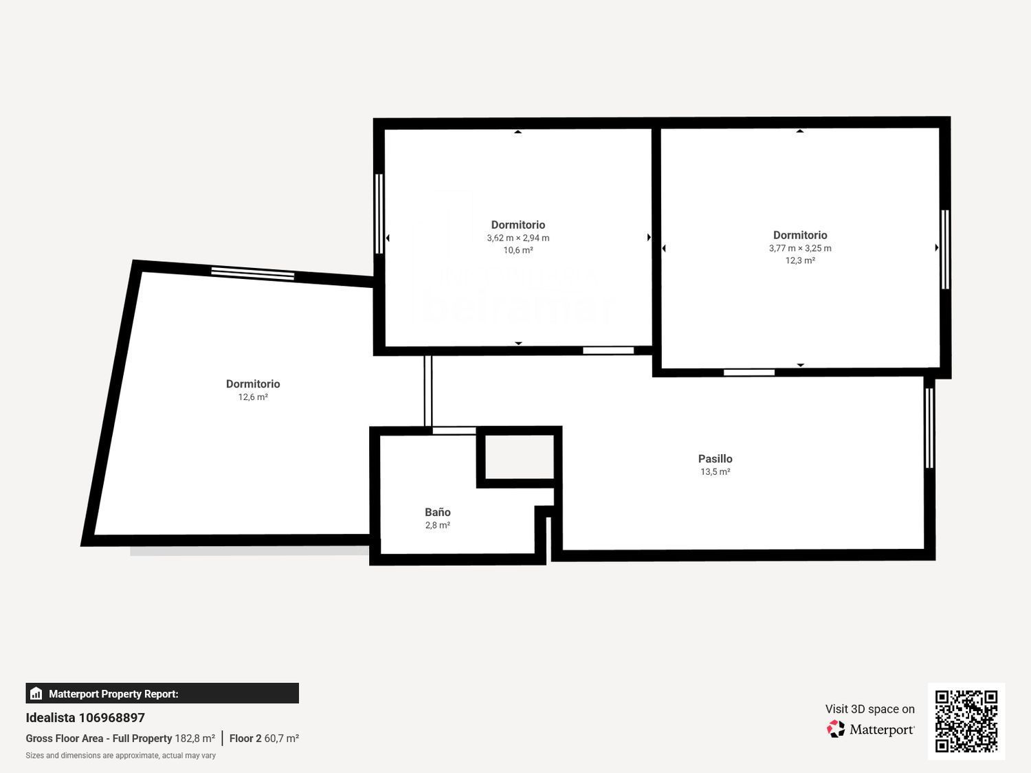
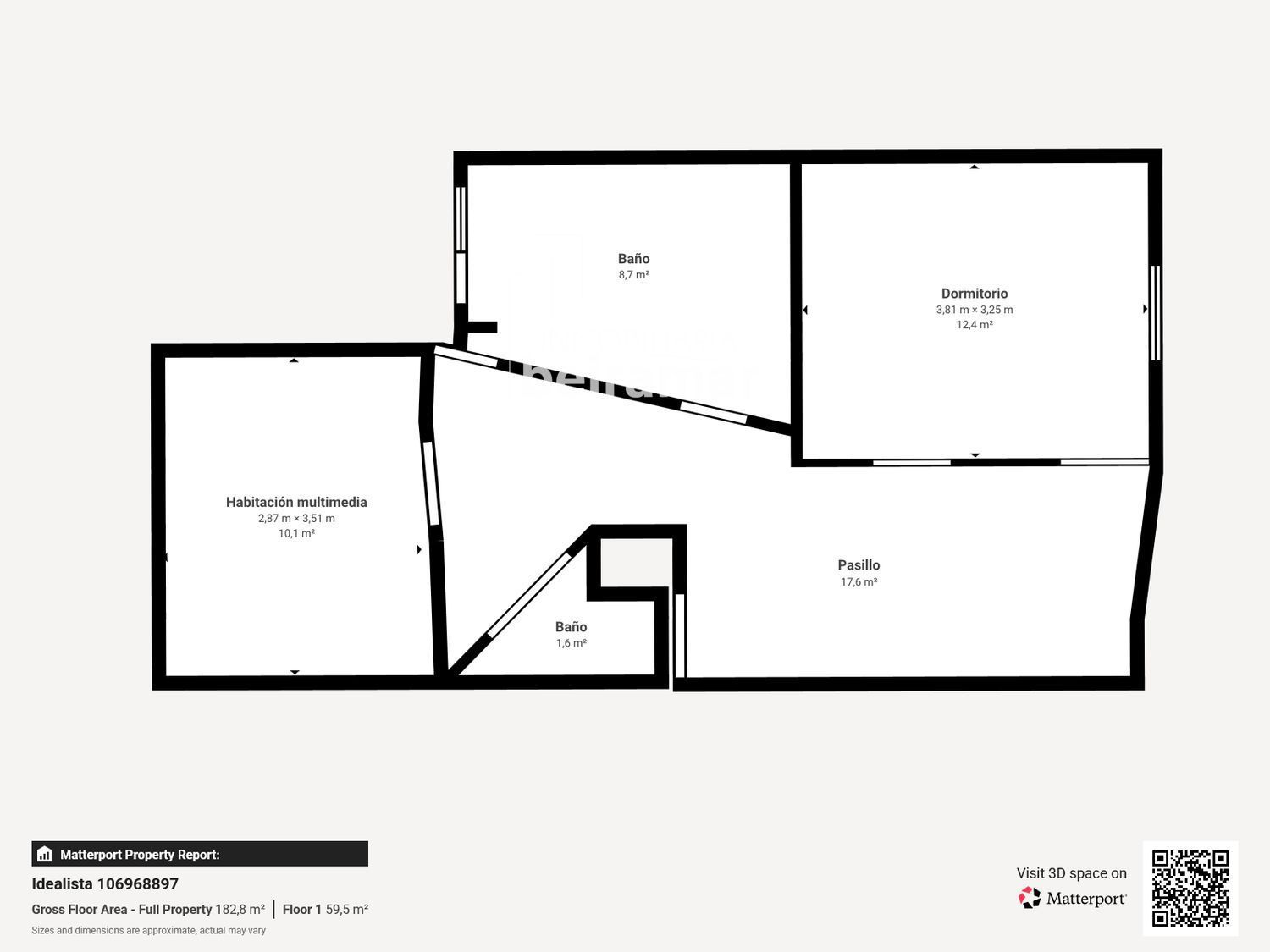
La primera planta dispone de tres dormitorios y un cuarto de baño, contando uno de los dormitorios con vistas al mar, lo que aporta un valor añadido a la vivienda.
En la planta bajo cubierta se ubica una zona de estar, un cuarto de baño y un trastero de aproximadamente 19 m², con vistas abiertas al mar, ideal como zona de ocio, despacho o espacio adicional.
La vivienda ha tenido humedades en el pasado, actualmente ya reparadas, lo que permite disponer de una mayor tranquilidad en este aspecto.
Ubicada a tan solo 150 metros de la Playa de Ameixida y a 300 metros de la Playa dos Mosqueiros, y a escasos minutos del centro de Ribeira, combina perfectamente tranquilidad, entorno natural y cercanía a todos los servicios.
Una propiedad difícil de encontrar por su ubicación, características y cercanía al mar.
Impuestos no incluidos, tributa por ITP, también existen gastos de notaría y de registro.
Contacte con nosotros para más información o para concertar una visita.